The reflexive narrative accounts presented in this blog invite you to share with the reader the emergence and evolution of my passion about Architecture, and in particular the Contemporary strand of Architecture. The emergence and evolution of my passion were sparked by the works of Frank Gehry, one of most famous contemporary Architects. Exploring and studying Frank Gehry’s works has been like a journey that began when I first came across his first iconic building in Australia called Dr Chau Chak Wing Building. This building is now the Business School building of the University of Technology in Sydney. I have since followed with much fascination Frank Gehry’s design concepts and approaches and was delighted to find out that the BBC also acknowledged Frank Gehry’s works calling the program:The Architect says..…

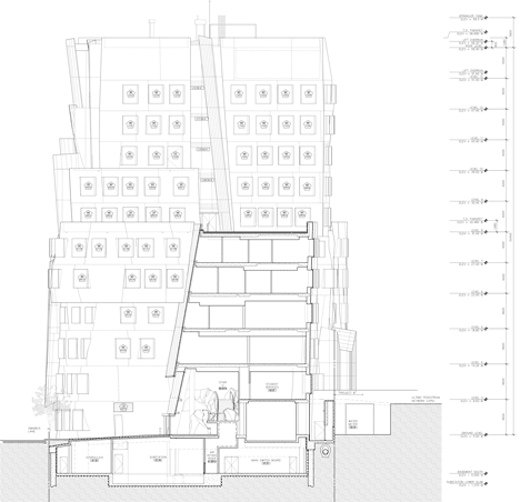
Dr Chau Chak Wing Building is named after the Australian-Chinese businessman and philanthropist who donated $20 million to the project. Frank Gehry's buildings often describe the cities where they are built. Construction of Dr Chau Chak Wing building started in 2012. The building construction was completed in November 2014 and the official opening took place on 2 February 2015. The building’s exterior is two different facades:
- One is brickwork, referencing the sandstone of Sydney’s urban heritage, and the other
-One is a glass ‘curtain wall’ which acts as a mirror to reflect buildings around it in the city.
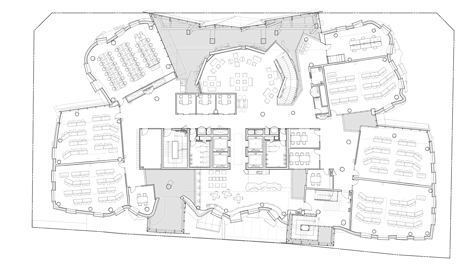
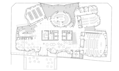
It is a 12 story building which provides teaching, learning and research facilities for its users. It has a basement as a parking level and a plant level and a roof top.
These fluid and wavy shapes of this building articulates liveliness of the building which is similar to those of Frank Gehry's previous buildings, like the Walt Disney Concert Hall and the Guggenheim Bilbao, but here they have been created using custom-designed bricks that had to be laid by hand.
Frank Gehry says the choice of materials was a response to the local context.
"I think when the university hired me they expected a shiny metal building," he said. "I made some shiny metal models but they were things I had already sort of worked over and done. I just felt that it should be a material like in the neighbourhood. If I'd built it in metal it would have been fine too, but I think the metal would have cost more."
These curvy shape of the building continues in side as well from its unique stainless-steel staircase which is like a sculpture in the main lobby to its oval classrooms.




24 Buildings by Frank Gehry
Frank Gehry is a Canadian Architect with fantastic imagination. He had his first national attention when some furniture he had built from industrial cardboard became popular. After Gehry rebuilt his house using unlovely elements of American building materials it was not welcomed by his neighbours who called it an eyesore but perhaps that was the beginning of his unusual architecture style career. Frank Gehry is known for his philosophy in Architecture and creating uneven objects out of building materials such as brick, steel and glass. In the BBC documentary Gehry describes how he believes movement shows feelings and the way his buildings are designed shows that they are in progress.




Conceptual Models














According to Gehry, the design was inspired by a treehouse. The expressive external form was a result of the complicated internal layout, described by the architect as "a growing learning organism with many branches of thought, some robust and some ephemeral and delicate"
![]() | ![]() |
|---|---|
![]() | ![]() |
![]() | ![]() |
![]() | ![]() |
![]() |







Nowadays with the help of technology which is continuously pushing the boundaries it is possible to develop new and more unique shapes. In Dr Chau Chak Wing building case brick, tie, mortar and backing system solved the load, constructability and complex geometrical issues, allowing a near impossible feat of engineering to be realised.













